Zpět Zpět na výpis nemovitostí

Prodej komerčních prostor kanceláře 123 m², Palackého náměstí, Praha-Nové Město

Palackého náměstí, Praha Zobrazit na mapě Zobrazit na mapě

Stav

Volný

Typ

Kanceláře

Obytná plocha

123 m2

Stav objektu

Velmi dobrý

Stavba

Cihlová

Typ domu

Patrový

Cena na vyžádání

Pohlídejte si cenu této nemovitosti Pohlídejte si cenu této nemovitosti

Sledovat dostupnost

Upozornění

Pohlídejte si změny u této nemovitosti

Dáme vám vědět, ať už se změní cena nebo stav nemovitosti.

Upozornění

O vaše data je u nás postaráno. Přečtěte si naše podmínky pro ochranu os. údajů.

Kalkulačka financování Kalkulačka financování

Spočítejte si, na kolik vás vyjde hypotéka

Spočítejte si, na kolik vás vyjde hypotéka

Spočítejte si, na kolik vás vyjde hypotéka

Kalkulačka je skvělý start pro vaše finanční plánování a pevný základ pro podrobnější diskusi s našimi finančními poradci.

Více o této nemovitosti

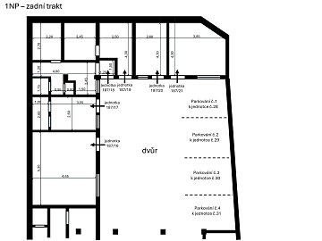
Obchodní prostory o celkové podlahové ploše 43 m2, k nimž náleží předzahrádka o výměře 80 m2. Nemovitost se nachází na jedinečném místě, na Palackého náměstí v centru Prahy. Prostory jsou ve 2. podzemním podlaží (okna jsou orientována do klidného vnitrobloku) dobře udržovaného historického domu s přímým vstupem do vnitrobloku.

Jednotka nabízí prostor pro komerční využití (kancelář, ordinace, masérské studio). Součástí jednotky je i kuchyň s jídelním koutem, koupelna a samostatné WC. Z kuchyně se dostaneme na prostornou předzahrádku, která je situována v klidném vnitrobloku. K jednotce je možno si dokoupit sklepní kóji 2,4 m2.

Jednotka je vhodná jak k bydlení, tak i ke komerčnímu využití a je ideální jako velmi dobrá investiční příležitost ke krátkodobým pronájmům s nadprůměrným zhodnocením.

Palackého náměstí je jedním z nejvyhledávanějších a nejprestižnějších míst v srdci Prahy. Kromě skvělé dostupnosti kulturních a historických památek se v těsné blízkosti nachází náplavka, která nabízí jedinečné prostředí pro relaxaci u Vltavy. V letních měsících se zde konají oblíbené trhy, kulturní akce a plavby po řece. Tato lokalita je ideálním místem pro ty, kteří si cení výjimečného spojení přírody a městského života. V těsné blízkosti najdete veškerou občanskou vybavenost – obchody, restaurace, kavárny i školy. Výborná dostupnost MHD – tramvajová zastávka je jen pár kroků od domu a metro (trasa B) je ihned před vchodem do domu. Vzhledem k atraktivní lokalitě se jedná o ideální místo pro pohodlné bydlení i podnikání v samém centru Prahy.

Součástí naší nabídky je kompletní servis, tedy právní služby a zajištění všech potřebných dokumentů, pomoc se zajištěním financování, pojištění nemovitosti i domácnosti, přepisy energií.

Pouze u nás vám zajistíme moderní financování až na 30 let, bez ohledu na věk a prokazování příjmů, či nutnosti předkládat daňové přiznání (u podnikatelů). Zeptejte se nás a bydlete chytře!

Bližší informace vám rád sdělím při osobní prohlídce tohoto bytu. Neváhejte mne kontaktovat! Pro komunikaci uvádějte evidenční číslo zakázky N114779.

Lokalita

Obec

Praha

Ulice

Palackého náměstí

Informace o nemovitosti

Stav

Volný

Typ smlouvy

Prodej

Typ nemovitosti

Komerční

Další informace

Typ

Kanceláře

Obytná plocha

123 m2

Stav objektu

Velmi dobrý

Stavba

Cihlová

Typ domu

Patrový

Energetická náročnost budovy

G - Mimořádně nehospodárná

Navigovat k nemovitosti Navigovat k nemovitosti

Máte zájem o tuto nemovitost?

Kontaktujte mě a domluvme se na prohlídce

Dejte nám vědět, s čím vám můžeme pomoct

Osobně s vámi projdeme každý detail

Preferovaný den prohlídky

Preferovaný čas prohlídky

Nejpozději do 24 hodin se ozveme nazpátek.

O vaše data je u nás postaráno. Přečtěte si naše podmínky pro ochranu os. údajů.

Děkujeme za váš zájem

Vaše informace jsme přijali a brzy se vám ozveme.

Váš požadavek byl úspěšně odeslán

Dejte nám vědět, s čím vám můžeme pomoct

Osobně s vámi projdeme každý detail

Podobné nemovitosti v naší nabídce

Mohlo by vás také zaujmout

Proč zrovna my?

Česká firma

Česká firma

Jsme ryze česká společnost, která zná lokální trh do posledního detailu. Díky tomu rozumíme specifikům českého realitního prostředí a dokážeme klientům nabídnout služby šité na míru jejich potřebám.

Komplexní právní servis

Komplexní právní servis

Realitní transakce vyžadují precizní právní zajištění, aby byl obchod bezpečný a bez komplikací. S NEXT Reality Group získáte kompletní právní servis, včetně smluvní dokumentace a advokátní úschovy, abyste měli jistotu, že je váš prodej či koupě v naprostém pořádku.

Tradice od roku 2006

Tradice od roku 2006

Za téměř dvě dekády působení na trhu jsme pomohli tisícům klientů najít ideální bydlení nebo úspěšně prodat jejich nemovitosti. Dlouholetá zkušenost a stabilita společnosti jsou zárukou spolehlivosti a profesionálního přístupu.

Inzerce nemovitostí až na 100 serverech

Inzerce nemovitostí až na 100 serverech

Čím větší dosah, tím rychlejší prodej za nejlepší cenu. Vaši nemovitost inzerujeme na nejdůležitějších realitních portálech, což zajišťuje maximální viditelnost a oslovuje široké spektrum potenciálních kupců.

Moderní marketing

Moderní marketing

Využíváme efektivní online kampaně, sociální sítě i cílenou reklamu, abychom vaši nemovitost dostali do povědomí správných lidí. Díky tomu se prodejní proces zrychlí a vy máte jistotu, že se vaše nabídka neztratí v záplavě ostatních inzerátů.

Nadstandardní prezentace nemovitostí

Nadstandardní prezentace nemovitostí

Profesionální fotografie, video prohlídky, dronové záběry nebo 3D virtuální prohlídky – to vše dává vaší nemovitosti konkurenční výhodu. Perfektní vizuální prezentace přitahuje více zájemců a zvyšuje šanci na rychlý a výhodný prodej.

Odbornost a profesionalita

Odbornost a profesionalita

Každý obchod je pro nás závazkem k maximální kvalitě a důslednosti. Naši makléři pracují s aktuálními daty z trhu, aby vám poskytli přesné ocenění nemovitosti i strategii prodeje, která povede k optimálnímu výsledku.

Certifikovaní realitní makléři

Certifikovaní realitní makléři

Váš obchod povedou odborníci, kteří prošli certifikacemi a pravidelným školením v oblasti realitního práva, financí i vyjednávání. To vám dává jistotu, že spolupracujete s profesionály, kteří hájí vaše zájmy a dovedou vás k úspěšnému obchodu.