Zpět Zpět na výpis nemovitostí

Prodej komerčních prostor obchodní prostory 25 m², Husitská, Praha-Žižkov

Husitská, Praha Zobrazit na mapě Zobrazit na mapě

Stav

Prodáno

Typ

Obchodní prostory

Obytná plocha

25 m2

Stav objektu

Před rekonstrukcí

Stavba

Cihlová

Typ domu

Přízemní

2 460 000 Kč

Pohlídejte si cenu této nemovitosti Pohlídejte si cenu této nemovitosti

Sledovat dostupnost

Upozornění

Pohlídejte si změny u této nemovitosti

Dáme vám vědět, ať už se změní cena nebo stav nemovitosti.

Upozornění

O vaše data je u nás postaráno. Přečtěte si naše podmínky pro ochranu os. údajů.

Kalkulačka financování Kalkulačka financování

Spočítejte si, na kolik vás vyjde hypotéka

Spočítejte si, na kolik vás vyjde hypotéka

Spočítejte si, na kolik vás vyjde hypotéka

Kalkulačka je skvělý start pro vaše finanční plánování a pevný základ pro podrobnější diskusi s našimi finančními poradci.

Více o této nemovitosti

Vážení klienti, ve výhradním zastoupení majitele, si vám dovolujeme nabídnout jedinečnou příležitost ke koupi, a to ateliér v projektu Husitská 60 v samotném srdci Žižkova.

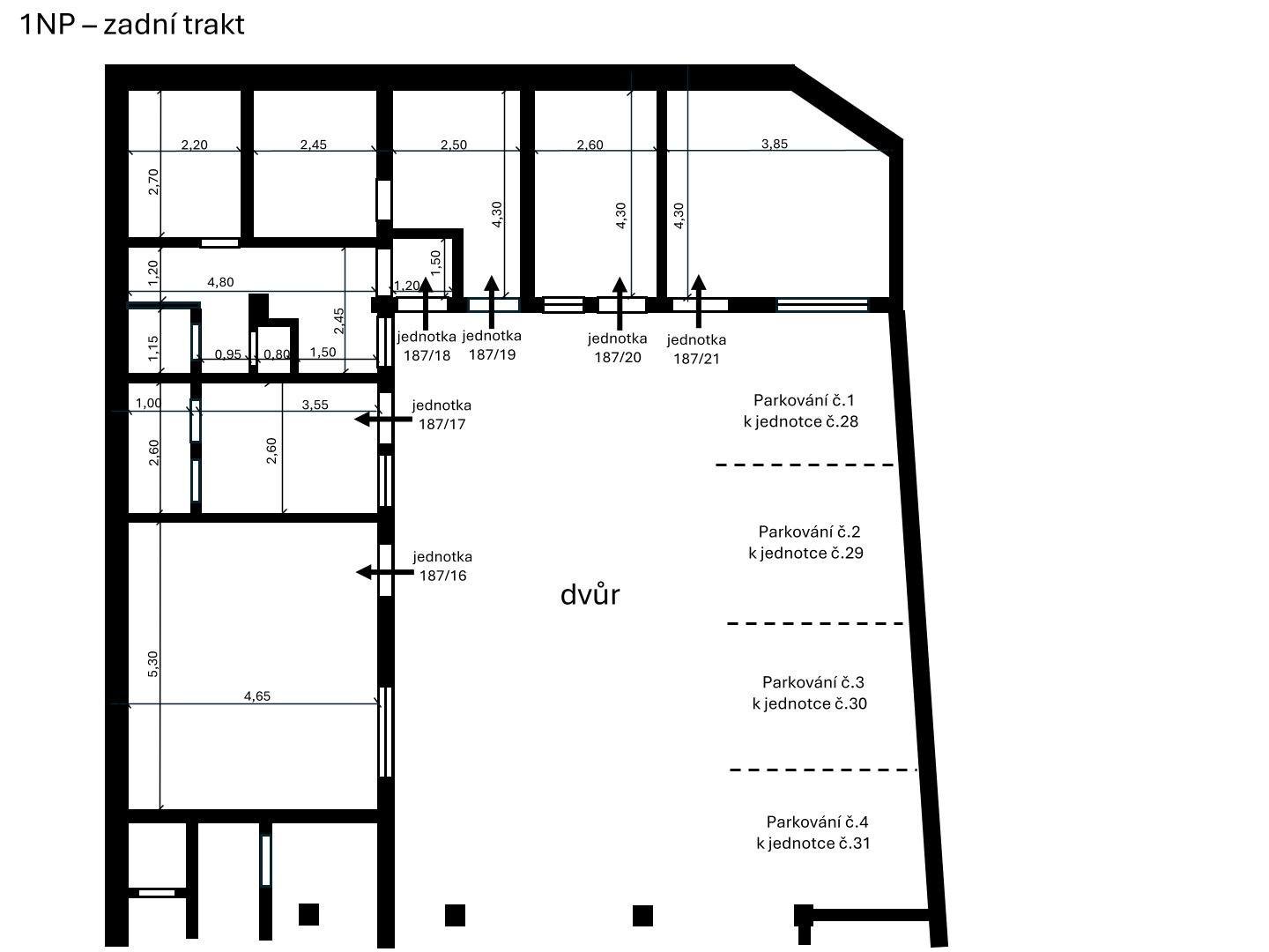
Ateliér se nachází v 1. nadzemním podlaží se vstupem z vnitrobloku, díky jeho pravidelnému tvaru je skvěle využitelný a jeho celková podlahová plocha je 24,60 m2 a je určen k rekonstrukci. V přiložených půdorysech je tento ateliér označený jako 187/16.

Do ateliéru je přiveden nový odpad a rozvod vody.

V lokalitě se nachází kompletní občanská vybavenost a služby, včetně mateřských škol, základních škol a prestižní Vysoké školy Ekonomické v Praze.

Díky strategické poloze je lokalita dobře dostupná pomocí veřejné dopravy a nabízí snadný přístup do centra města i do ostatních částí Prahy.
V docházkové vzdálenosti je metro, vlakové i autobusové nádraží.

V okolí najdete krásné parky a moderní sportoviště, které poskytují prostor pro volnočasové aktivity. Součástí naší nabídky je kompletní servis, tedy právní služby a zajištění všech potřebných dokumentů, pomoc se zajištěním financování, pojištění nemovitosti i domácnosti, přepisy energií.

Bližší informace Vám rád sdělím na osobní prohlídce tohoto ateliéru. Pro komunikaci uvádějte evidenční číslo zakázky N106311.

Lokalita

Obec

Praha

Ulice

Husitská

Informace o nemovitosti

Stav

Prodáno

Typ smlouvy

Prodej

Typ nemovitosti

Komerční

Další informace

Typ

Obchodní prostory

Obytná plocha

25 m2

Stav objektu

Před rekonstrukcí

Stavba

Cihlová

Typ domu

Přízemní

Navigovat k nemovitosti Navigovat k nemovitosti

Podobné nemovitosti v naší nabídce

Mohlo by vás také zaujmout

Proč zrovna my?

Česká firma

Česká firma

Jsme ryze česká společnost, která zná lokální trh do posledního detailu. Díky tomu rozumíme specifikům českého realitního prostředí a dokážeme klientům nabídnout služby šité na míru jejich potřebám.

Komplexní právní servis

Komplexní právní servis

Realitní transakce vyžadují precizní právní zajištění, aby byl obchod bezpečný a bez komplikací. S NEXT Reality Group získáte kompletní právní servis, včetně smluvní dokumentace a advokátní úschovy, abyste měli jistotu, že je váš prodej či koupě v naprostém pořádku.

Tradice od roku 2006

Tradice od roku 2006

Za téměř dvě dekády působení na trhu jsme pomohli tisícům klientů najít ideální bydlení nebo úspěšně prodat jejich nemovitosti. Dlouholetá zkušenost a stabilita společnosti jsou zárukou spolehlivosti a profesionálního přístupu.

Inzerce nemovitostí až na 100 serverech

Inzerce nemovitostí až na 100 serverech

Čím větší dosah, tím rychlejší prodej za nejlepší cenu. Vaši nemovitost inzerujeme na nejdůležitějších realitních portálech, což zajišťuje maximální viditelnost a oslovuje široké spektrum potenciálních kupců.

Moderní marketing

Moderní marketing

Využíváme efektivní online kampaně, sociální sítě i cílenou reklamu, abychom vaši nemovitost dostali do povědomí správných lidí. Díky tomu se prodejní proces zrychlí a vy máte jistotu, že se vaše nabídka neztratí v záplavě ostatních inzerátů.

Nadstandardní prezentace nemovitostí

Nadstandardní prezentace nemovitostí

Profesionální fotografie, video prohlídky, dronové záběry nebo 3D virtuální prohlídky – to vše dává vaší nemovitosti konkurenční výhodu. Perfektní vizuální prezentace přitahuje více zájemců a zvyšuje šanci na rychlý a výhodný prodej.

Odbornost a profesionalita

Odbornost a profesionalita

Každý obchod je pro nás závazkem k maximální kvalitě a důslednosti. Naši makléři pracují s aktuálními daty z trhu, aby vám poskytli přesné ocenění nemovitosti i strategii prodeje, která povede k optimálnímu výsledku.

Certifikovaní realitní makléři

Certifikovaní realitní makléři

Váš obchod povedou odborníci, kteří prošli certifikacemi a pravidelným školením v oblasti realitního práva, financí i vyjednávání. To vám dává jistotu, že spolupracujete s profesionály, kteří hájí vaše zájmy a dovedou vás k úspěšnému obchodu.