Zpět Zpět na výpis nemovitostí

Prodej bytu 3+1 78 m², Trhanovské náměstí, Praha-Hostivař

Trhanovské náměstí, Praha Zobrazit na mapě Zobrazit na mapě

Stav

Prodáno

Typ

3+1

Obytná plocha

78 m2

Stav objektu

Velmi dobrý

Stavba

Panelová

Vlastnictví

Družstevní

7 600 000 Kč

Pohlídejte si cenu této nemovitosti Pohlídejte si cenu této nemovitosti

Sledovat dostupnost

Upozornění

Pohlídejte si změny u této nemovitosti

Dáme vám vědět, ať už se změní cena nebo stav nemovitosti.

Upozornění

O vaše data je u nás postaráno. Přečtěte si naše podmínky pro ochranu os. údajů.

Kalkulačka financování Kalkulačka financování

Spočítejte si, na kolik vás vyjde hypotéka

Spočítejte si, na kolik vás vyjde hypotéka

Spočítejte si, na kolik vás vyjde hypotéka

Kalkulačka je skvělý start pro vaše finanční plánování a pevný základ pro podrobnější diskusi s našimi finančními poradci.

Více o této nemovitosti

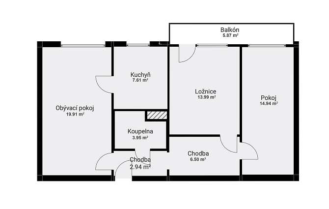
Dovolujeme si Vám nabídnout slunný byt v družstevním vlastnictví o celkové výměře 78m2 a dispozici 3+1 nacházejícího se v 1NP panelového domu.
Jak je z fotografií patrné, dům je postaven ve stráni, čili poloha bytové jednotky odpovídá třetímu patru.

Byt je velmi dobře dispozičně řešen, sestává se ze tří neprůchozích pokojů (19,51m2, 14,54m2, 13,58m2), kuchyně (7,41m2), koupelny s WC (3,77m2), chodby (6m2 a 2,94m2) a Lodžie (5,47m2). K bytu dále náleží sklepní kóje a komora, která je na patře.

Na podlahách pokojích jsou plovoucí podlahy, kuchyň i koupelna prošly vkusnou a nákladnou rekonstrukcí. Dům je ve velmi dobrém stavu s novou fasádou.

Jedná se o klidnou lokalitu plnou zeleně s veškerou občanskou vybaveností v místě a zároveň s výbornou dostupností do centra města.
Pro komunikaci uvádějte evidenční číslo zakázky N110160.

Lokalita

Obec

Praha

Ulice

Trhanovské náměstí

Informace o nemovitosti

Stav

Prodáno

Typ smlouvy

Prodej

Typ nemovitosti

Byt

Další informace

Typ

3+1

Obytná plocha

78 m2

Stav objektu

Velmi dobrý

Stavba

Panelová

Vlastnictví

Družstevní

Energetická náročnost budovy

G - Mimořádně nehospodárná

Sklep

Ano

Lodžie

Ano

Navigovat k nemovitosti Navigovat k nemovitosti

Máte zájem o tuto nemovitost?

Kontaktujte mě a domluvme se na prohlídce

Dejte nám vědět, s čím vám můžeme pomoct

Osobně s vámi projdeme každý detail

Preferovaný den prohlídky

Preferovaný čas prohlídky

Nejpozději do 24 hodin se ozveme nazpátek.

O vaše data je u nás postaráno. Přečtěte si naše podmínky pro ochranu os. údajů.

Děkujeme za váš zájem

Vaše informace jsme přijali a brzy se vám ozveme.

Váš požadavek byl úspěšně odeslán

Dejte nám vědět, s čím vám můžeme pomoct

Osobně s vámi projdeme každý detail

Podobné nemovitosti v naší nabídce

Mohlo by vás také zaujmout

Nově v nabídce Nově v nabídce
Prodáno
Detail nemovitosti

Prodej bytu 3+1 97 m², Palackého náměstí, Praha-Nové Město

Ulice Palackého náměstí, Praha

13 940 000 Kč
Prodáno
Detail nemovitosti

Prodej bytu 3+1 97 m², Palackého náměstí, Praha-Nové Město

Ulice Palackého náměstí, Praha

13 490 000 Kč
Top nabídka Top nabídka
Prodáno
Detail nemovitosti

Prodej bytu 2+kk 42 m², Praha

Ulice Praha

6 490 000 Kč
Top nabídka Top nabídka
Realizováno
Detail nemovitosti
Realizováno
Detail nemovitosti

Prodej bytu 1+1 91 m², Na mokřině, Praha-Žižkov

Ulice Na mokřině, Praha

7 800 000 Kč
Top nabídka Top nabídka
Prodáno
Detail nemovitosti

Prodej bytu 2+kk 48 m², Velehradská, Praha-Vinohrady

Ulice Velehradská, Praha

7 990 000 Kč
Prodáno
Detail nemovitosti

Prodej bytu 1+1 36 m², U Kublova, Praha-Podolí

Ulice U Kublova, Praha

5 600 000 Kč
Prodáno
Detail nemovitosti

Prodej bytu 1+1 87 m², Na mokřině, Praha-Žižkov

Ulice Na mokřině, Praha

7 800 000 Kč
Prodáno
Detail nemovitosti

Prodej bytu 1+1 43 m², Praha

Ulice Praha

6 577 093 Kč
Prodáno
Detail nemovitosti
Nově v nabídce Nově v nabídce
Prodáno
Detail nemovitosti

Prodej bytu 1+kk 43 m², Praha

Ulice Praha

5 737 500 Kč
Prodáno
Detail nemovitosti

Prodej bytu 1+kk 25 m², Praha

Ulice Praha

3 909 300 Kč
Realizováno
Detail nemovitosti
Volný
Detail nemovitosti

Prodej bytu 2+kk 43 m², Velehradská, Praha-Vinohrady

Ulice Velehradská, Praha

9 297 000 Kč
Nově v nabídce Nově v nabídce
Realizováno
Detail nemovitosti

Prodej bytu 1+kk 33 m², Velehradská, Praha-Vinohrady

Ulice Velehradská, Praha

6 848 000 Kč
Prodáno
Detail nemovitosti
Prodáno
Detail nemovitosti
Realizováno
Detail nemovitosti

Prodej bytu 2+kk 87 m², Na mokřině, Praha-Žižkov

Ulice Na mokřině, Praha

7 800 000 Kč
Realizováno
Detail nemovitosti

Prodej bytu 1+kk 39 m², U Kublova, Praha-Podolí

Ulice U Kublova, Praha

5 900 000 Kč
Prodáno
Detail nemovitosti

Prodej bytu 1+1 43 m², Palackého náměstí, Praha-Nové Město

Ulice Palackého náměstí, Praha

8 600 000 Kč

Proč zrovna my?

Česká firma

Česká firma

Jsme ryze česká společnost, která zná lokální trh do posledního detailu. Díky tomu rozumíme specifikům českého realitního prostředí a dokážeme klientům nabídnout služby šité na míru jejich potřebám.

Komplexní právní servis

Komplexní právní servis

Realitní transakce vyžadují precizní právní zajištění, aby byl obchod bezpečný a bez komplikací. S NEXT Reality Group získáte kompletní právní servis, včetně smluvní dokumentace a advokátní úschovy, abyste měli jistotu, že je váš prodej či koupě v naprostém pořádku.

Tradice od roku 2006

Tradice od roku 2006

Za téměř dvě dekády působení na trhu jsme pomohli tisícům klientů najít ideální bydlení nebo úspěšně prodat jejich nemovitosti. Dlouholetá zkušenost a stabilita společnosti jsou zárukou spolehlivosti a profesionálního přístupu.

Inzerce nemovitostí až na 100 serverech

Inzerce nemovitostí až na 100 serverech

Čím větší dosah, tím rychlejší prodej za nejlepší cenu. Vaši nemovitost inzerujeme na nejdůležitějších realitních portálech, což zajišťuje maximální viditelnost a oslovuje široké spektrum potenciálních kupců.

Moderní marketing

Moderní marketing

Využíváme efektivní online kampaně, sociální sítě i cílenou reklamu, abychom vaši nemovitost dostali do povědomí správných lidí. Díky tomu se prodejní proces zrychlí a vy máte jistotu, že se vaše nabídka neztratí v záplavě ostatních inzerátů.

Nadstandardní prezentace nemovitostí

Nadstandardní prezentace nemovitostí

Profesionální fotografie, video prohlídky, dronové záběry nebo 3D virtuální prohlídky – to vše dává vaší nemovitosti konkurenční výhodu. Perfektní vizuální prezentace přitahuje více zájemců a zvyšuje šanci na rychlý a výhodný prodej.

Odbornost a profesionalita

Odbornost a profesionalita

Každý obchod je pro nás závazkem k maximální kvalitě a důslednosti. Naši makléři pracují s aktuálními daty z trhu, aby vám poskytli přesné ocenění nemovitosti i strategii prodeje, která povede k optimálnímu výsledku.

Certifikovaní realitní makléři

Certifikovaní realitní makléři

Váš obchod povedou odborníci, kteří prošli certifikacemi a pravidelným školením v oblasti realitního práva, financí i vyjednávání. To vám dává jistotu, že spolupracujete s profesionály, kteří hájí vaše zájmy a dovedou vás k úspěšnému obchodu.